TRDP系列母排型分离式电流互感器
TRDP系列母排型分离式电流互感器 TRDP系列母排型分离式电流互感器 TRDP系列母排型分离式电流互感器 TRDP系列母排型分离式电流互感器 TRDP系列母排型分离式电流互感器 TRDP系列母排型分离式电流互感器

TRDP系列母排型分离式电流互感器

  • 产品介绍
  • 常见问题
  • 资质证书
  • 留言咨询
产品概述
 
主要用于0.66kV交流电力系统中的电气设备的测量和保护用途,亦可与继电保护、测量以及计量装置配套使用,普遍应用在城网、农网改造中。该类型互感器安装方便,无须拆一次线,亦可带电操作,不影响客户正常用电安装使用。
产品规格图
 
功能特点
 

分离式结构,易于安装,便于操作

铁芯可分割,精度高,磁路损耗小

用于线路和设备的电流测量、监控、和保护

内部窗口大,可以穿过夹钳、电缆或汇流排

互感器性能指标
 
参 数 符 号 指 标
额定输入电流 In 100A~5000A
额定输出电流 Io 1A,5A
额定负载 RL 1VA~30VA
精度等级 ρ 0.5、1.0 、1.5级
短时热电流 20×In
工频耐压 Vd 3000V AC/1min
绝缘电阻 ≥1000MΩ/500V AC
工作温度 Ta -25℃ ~ +75℃
环境湿度 ≤85%
工作频率 f 50~60Hz
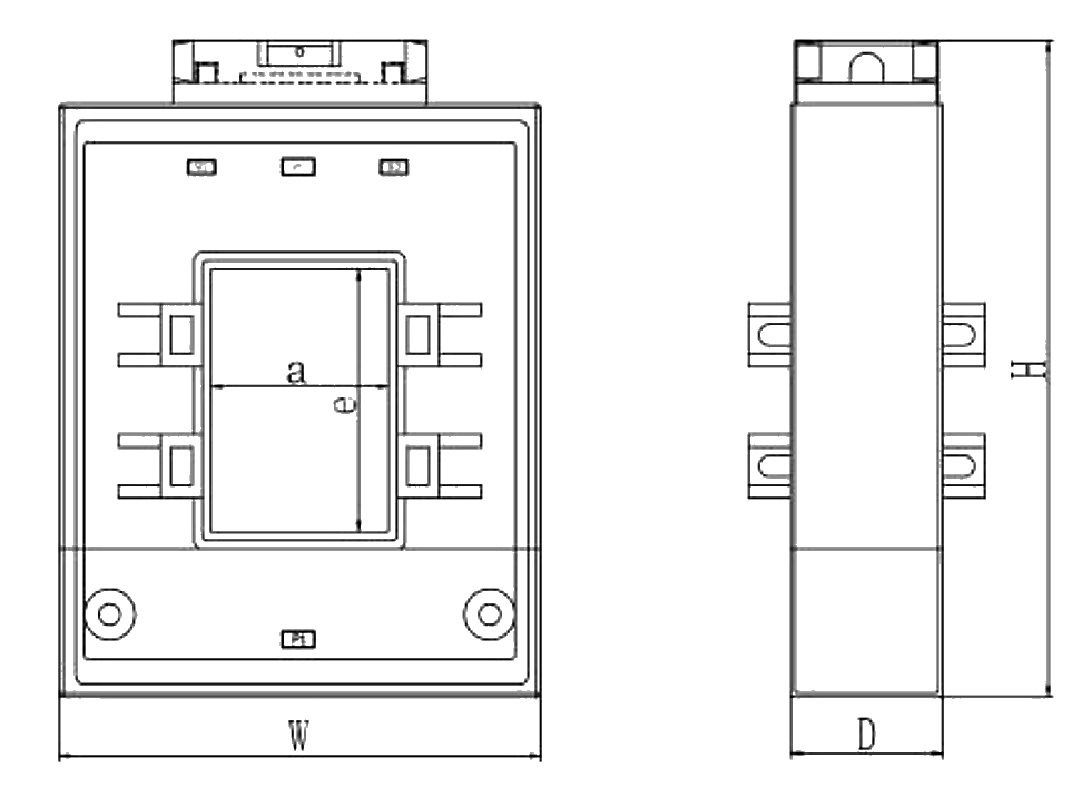
产品尺寸
 
产品尺寸 外形尺寸 穿孔尺寸
W H D a e
TRDP-30*20 90 114 40 22 32
TRDP-60*40 114 140 36 42 62
TRDP-80*50 122 160 40 52 82
TRDP-80*80 144 160 36 82 82
TRDP-100*50 144 190 48 52 102
TRDP-120*80 152 200 40 82 122
TRDP-140*60 164 234 52 62 142
TRDP-160*80 184 254 52 82 162
主要规格
 
型 号 规 格 额定负载(VA) 产品规格书
0.5级 1.0级 1.5级
 TRDP-30*20 100A/5A - - 1.5 PDF文档
150A/5A - - 2
200A/5A - 1.5 2.5
250A/5A - 1.5 3.75
300A/5A 1.5 3.75 5
400A/5A 2.5 5 10
 TRDP-60*40 200A/5A - 1.5 2.5 PDF文档
300A/5A 1.5 2.5 2
400A/5A 1.5 2.5 2
500A/5A 2.5 5 15
600A/5A 2.5 5 17.5
750A/5A 2.5 5 18
800A/5A 2.5 7.5 18
1000A/5A 5 10 20
TRDP-80*50 250A/5A 1 1.5 3.75 PDF文档
300A/5A 1.5 2.5 5
400A/5A 1.5 2.5 5
500A/5A 2.5 5 15
600A/5A 2.5 5 17.5
750A/5A 2.5 5 18
800A/5A 2.5 7.5 18
1000A/5A 5 10 20
TRDP-80*80 250A/5A 1 2 4 更新中
300A/5A 1.5 2.5 5
400A/5A 1.5 2.5 5
500A/5A 2.5 5 15
600A/5A 2.5 5 17.5
750A/5A 2.5 5 18
800A/5A 2.5 7.5 18
1000A/5A 5 10 20
型 号 规 格 额定负载(VA) 产品规格书
0.5级 1.0级 1.5级
TRDP-100*50 500A/5A 2.5 5 15 PDF文档
600A/5A 2.5 5 17.5
750A/5A 2.5 5 18
800A/5A 2.5 7.5 18
1000A/5A 5 10 20
1200A/5A 5 12.5 24
1250A/5A 7.5 15 28
1500A/5A 7.5 17 30
 TRDP-120*80 500A/5A - 4 12.5 PDF文档
600A/5A - 5 15
750A/5A 2.5 6 17.5
800A/5A 2.5 7.5 18
1000A/5A 5 10 20
1200A/5A 5 12.5 24
1250A/5A 7.5 15 28
1500A/5A 7.5 17 30
TRDP-140*60 1000A/5A 10 15 20 PDF文档
1500A/5A 15 20 25
2000A/5A 15 20 25
2500A/5A 15 20 25
3000A/5A 20 25 30
4000A/5A 20 25 30
5000A/5A 20 25 30
TRDP-160*80 1000A/5A 10 15 20 更新中
1500A/5A 15 20 25
2000A/5A 15 20 25
2500A/5A 15 20 25
3000A/5A 20 25 30
4000A/5A 20 25 30
5000A/5A 20 25 30
安装方式示意图
 

安装注意事项
 

开口电流互感器安装前必须将其二次与电表(或其他测量装置)接好,确保互感器二次没有开路

将所有接好二次线的开口电流互感器放置现场,等待安装

若现场一次母线为电缆,可进行带电安装;若一次母线为铜排,则带电操作对操作者要求熟练程度比较高,且要求做好绝缘防护措施

安装互感器时,铁芯切面处不得有杂质、灰尘等异物落入,以免影响互感器性能

开云体育的主营产品有:电流互感器、电压互感器、电流变换器、电压变换器、霍尔传感器等,希望可以帮到你。

天瑞公司现有三大业务领域分别是:继电保护与自动化、智能电网、新能源。其中,继保领域主要目标市场为:电量传感器、GPS同步时钟源;智能电网领域主要目标市场为:数显电力仪表、高压电能计量装置;新能源领域主要目标市场为:太阳能和风电转换装置、新能源电池监控装置等。

以满足客户需求为工作焦点,关注产品质量,提倡产品标准化,使经营业绩得到了蓬勃发展。近五年销售收入年均增幅为35%,高出行业增长水平20个百分点。 天瑞公司现有三大业务领域分别是:继电保护与自动化、智能电网、新能源。其中,继保领域主要目标市场为:电量传感器、GPS同步时钟源;智能电网领域主要目标市场为:数显电力仪表、高压电能计量装置;新能源领域主要目标市场为:太阳能和风电转换装置、新能源电池监控装置等。公司自成立之初,就致力做好做精做强电力电子产业,积极承担社会责任,高度重视人才培养,现已成为行业内广受尊重的企业之一。

2006年被推选为中国电器工业协会理事单位 2010年被评定为国家高新技术企业 2013年被中华全国总工会评为“工人先锋号”,被授予湖北省名牌 2014年被中国电子工业协会评为“全国电子信息行业最具社会责任企业”称号 2015年被授予湖北省著名商标2017年被评定为“中国驰名商标”

开云体育从1998年在湖北省天门市成立, 有着超过20年的技术开发和生产管理的经验积累。

电流互感器是由闭合的铁心和绕组组成。它的一次绕组匝数很少,串在需要测量的电流的线路中,因此它经常有线路的全部电流流过,二次绕组匝数比较多,串接在测量仪表和保护回路中,电流互感器在工作时,它的二次回路始终是闭合的,因此测量仪表和保护回路串联线圈的阻抗很小,电流互感器的工作状态接近短路。

按照用途不同,电流互感器大致可分为两类 : 测量用电流互感器:在正常工作电流范围内,向测量、计量等装置提供电网的电流信息。 保护用电流互感器:在电网故障状态下,向继电保护等装置提供电网故障电流信息。

剩余电流互感器是漏电保护器的检测元件,它的主要功能是检测通过互感器铁心的主电路的剩余电流(触电、漏电等接地故障电流),并将一次回路的剩余电流变换成二次回路的输出电压。剩余电流互感器是漏电保护器中最关键的部件之一。

电压传感器的原理: 对于交流电压测量,可用电压互感器作为传感元件,即使用一台电压互感器将被测电压降至到可利用的低电压,然后通过相关电路变换成与被测电压成线性关系的直流电压送入到数据采集系统和A/D转换器。 当被测电压为直流电压时,可用分压电阻作为传感元件,并联在被测元件两端的电阻值应足够大(一般应控制在消耗功率小于被测电机额定功率的1/1000以下)),以尽可能地减少该回路电流产生的损耗给测量值造成的影响,对于低压电机,应在10KΩ左右。取该被测电压在电阻上的一部分电压降作为信号,直接送入到数据采集系统和A/D转换器。

电压传感器的作用是自动检测电压,从而使我们能够对设备或系统的电压进行控制和显示,必要时采取过电压、欠电压等自动保护措施。
环境管理体系认证证书-中文
质量管理体系认证证书-中文
职业健康安全管理体系认证证书-中文
CE
IATF16949
REACH
REACH
RoHS
感谢您的留言,我们将尽快与您联系!

联系我们

服务热线:400-086-3003

电话:0728-5353116 5353117

传真:0728-5353121

邮箱:hbtr@hbtianrui.com

地址:湖北省天门市经济开发区创业大道8号

天瑞电子微信公众号
天瑞电子微信公众号
感谢您的留言,我们将尽快与您联系!